Biomass dryer intro

Biomass dryer

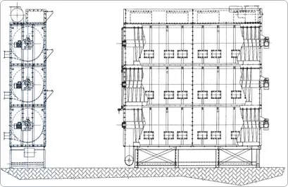
This is a biomass screw dryer modular system.

The screw dryer moves material from the input to the end of the screw where it falls into a tub.

The screw speed of the dryer is optimally controlled and determines the period during which the material is in the dryer. The number of tubs is dependent on the required output of the drying process.

The dryer is equipped with a fire extinguishing system in case that the technology catches fire. Almost a hot air boiler is the source of hot air for drying, equally cooling of engines in biogas stations or exhaust gases of them, heat from the parallel situated energy sources, cogeneration units, etc.

SAMPLES OF REFERENCE IMPLEMENTATION OF BIOMASS DRYERS